Virtual Walkthrough
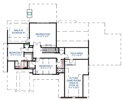
Floor Plan
Lot 11 Serenity Reserve is more than just another construction site.
It’s the beginning of something new in the heart of Wake County. Built with intention, using quality materials, modern design, and plenty of space, it’s a place designed to grow with you.
Construction is moving along, and it’s taking shape fast. Stay tuned! You’ll want to see how this one comes together.
Explore local shops and dining in downtown Youngsville, unwind at nearby parks and green spaces, or take advantage of close proximity to Wake Forest’s retail centers, restaurants, and entertainment options.
Outdoor enthusiasts will appreciate quick access to Falls Lake, hiking trails, and recreational activities just a short drive away.
Discover this exciting new neighborhood off Halifax Road where upscale living meets the natural beauty and charm of Youngsville.



Interested In One Of Our Properties?