Live Your Best Life!
Just a hop, skip, and a casual two-block strut, this gem is smack dab in the middle of all the action. Fayetteville Street’s festivities? Check. Raleigh’s crème de la crème dining experiences and the cultural beacon that is NC Museum of Art? Double check. Now, let’s talk about the kitchen, where the countertops are so sleek, your morning coffee will slide over just to say ‘hello.’ Designed for those who cook, those who pretend to cook, and those who just want to look like they cook while ordering takeout – it’s a stunner. And with wide plank engineered hardwood floors underfoot, even your toes will feel posh.

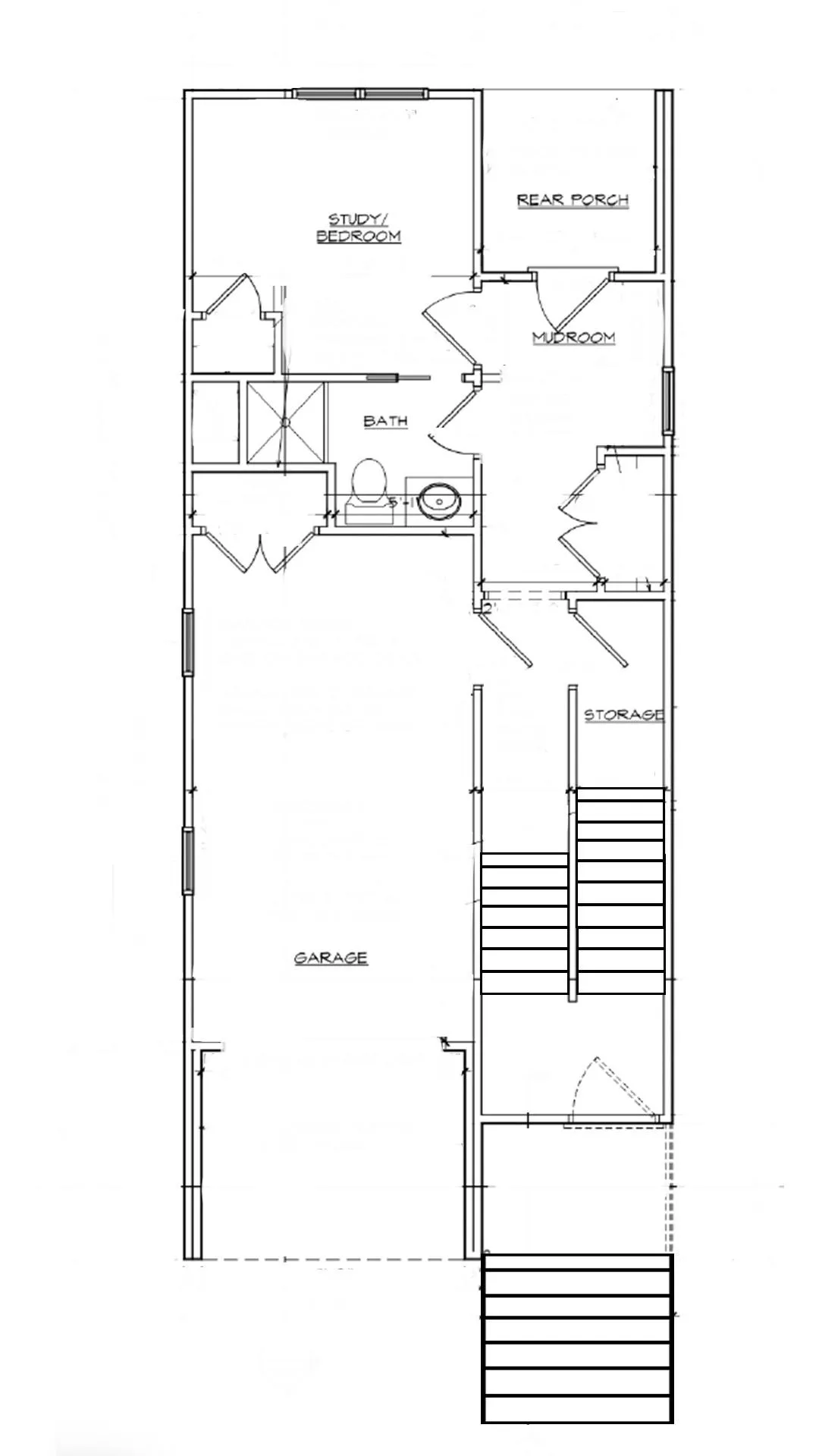
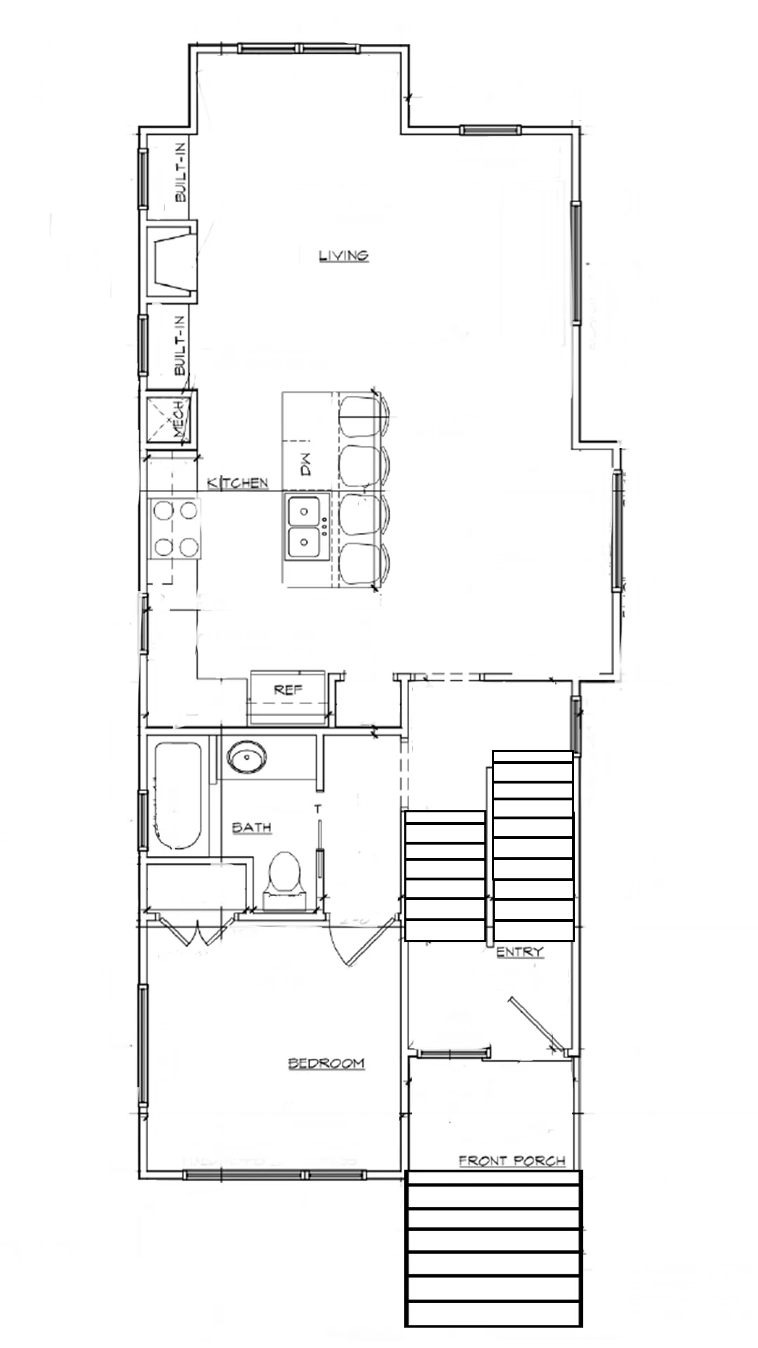
Floor Plan
So, if you’re ready to dive headfirst into the downtown lifestyle, this is your chance. Come for the view, stay for the sheer fabulousness of it all. Downtown Raleigh’s not just calling- its rolling out the red carpet and your not-so-humble abode awaits!
Property Photos
Exterior
Photos
Interior
Photos
Interested In 228 Woodsborough Pl?



Interested In One Of Our Properties?
